Casa Contenedor Modular – ModuLAiner
ModuLainer es nuestra solución de vivienda modular. Casas y oficinas listas para montar con aislamiento eficiente y diseño flexible.






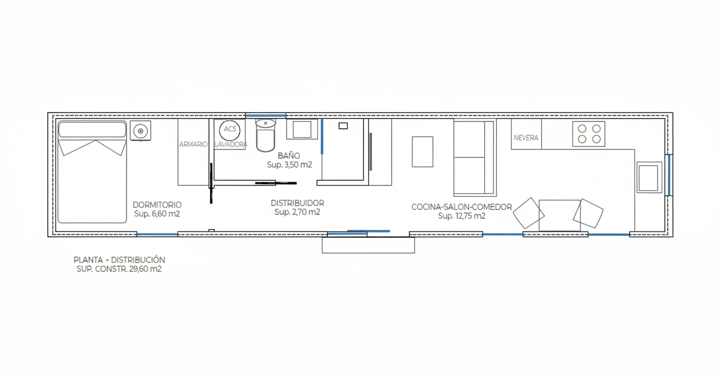
Planos de distribución

Planta de casa contenedor modular, distribución y superficies.

Plano de Casa Contenedor Modular
Acerca de






